
尾氣焚燒爐一般與酸性氣焚燒爐配套使用,作為酸性氣焚燒爐煙氣中殘余H2S氣體的燃燒載體,尾氣爐爐溫一般在650℃左右,要求燃燒器燃燒一定量的燃料氣來維持爐溫,以至于將殘余H2S氣體完全氧化成SO2后再排放入大氣中。
尾氣焚燒燃燒器一般根據尾氣的入口位置不同分兩種型式。一種尾氣從燃燒器進入;另一種從焚燒爐爐體前部進入。兩種進入方式的燃燒器結構型式及性能特點有較大的不同。
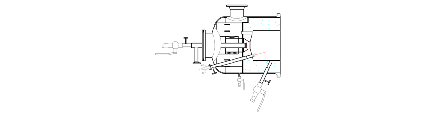
本類型燃燒器的特點:
· 尾氣從燃燒器進入使得焚燒爐的結構更簡單、保溫整體性好
· 尾氣雖在燃燒器上進入,但有單獨的通道,不妨礙燃料氣火焰的正常燃燒,不沖擊火焰
· 經過散熱計算,安裝在內筒里的火道磚可將火焰熱量傳遞給尾氣,使尾氣溫度達150℃以上,以避免長時間使用工況下尾氣噴管內積硫堵塞影響正常操作。
· 當硫磺回收處理量大于5000t/a時,可以而且有必要增加二次風機構,使得尾氣在爐內的有限停留時間內能夠充分的與空氣接觸,以保證氧化充分,滿足環保要求。
尾氣焚燒爐燃燒器的設計參數:
| 操作型式 | 強制通風 |
| 裝置處理量(t/a) | 1000-100000 |
| 爐膛溫度(℃) | 600-800 |
| 尾氣中H2S含量(%) | <0.5;<5(尾氣處理旁通) |
| 尾氣中NH3含量(ppm) | <50 |
| 燃料 | 燃料氣 |
| 燃料氣燃燒器前壓力Mpa(表) | 0.1 |
| 燃料氣溫度(℃) | >30 |
| 燃料氣重度(kg/NM3) | >0.5 |
| 燃料氣熱值(kcal/kg) | >6000 |
| 尾氣燃燒器前壓力Mpa(表) | 0.001~0.003 |
| 尾氣溫度(℃) | ~40 |
| 空氣燃燒器前壓力Mpa(表) | ~0.01 |
| 空氣溫度(℃) | 環境溫度 |
| 調節比(*大:*小) | 10:1 |
| 燃燒方向 | 水平 |
| 安裝位置 | 爐體端部 |